• Blijf op de hoogte van het actuele nieuws, huuraanbod en projecten van Stadsherstel Historisch Rotterdam via onze nieuwsbrief.

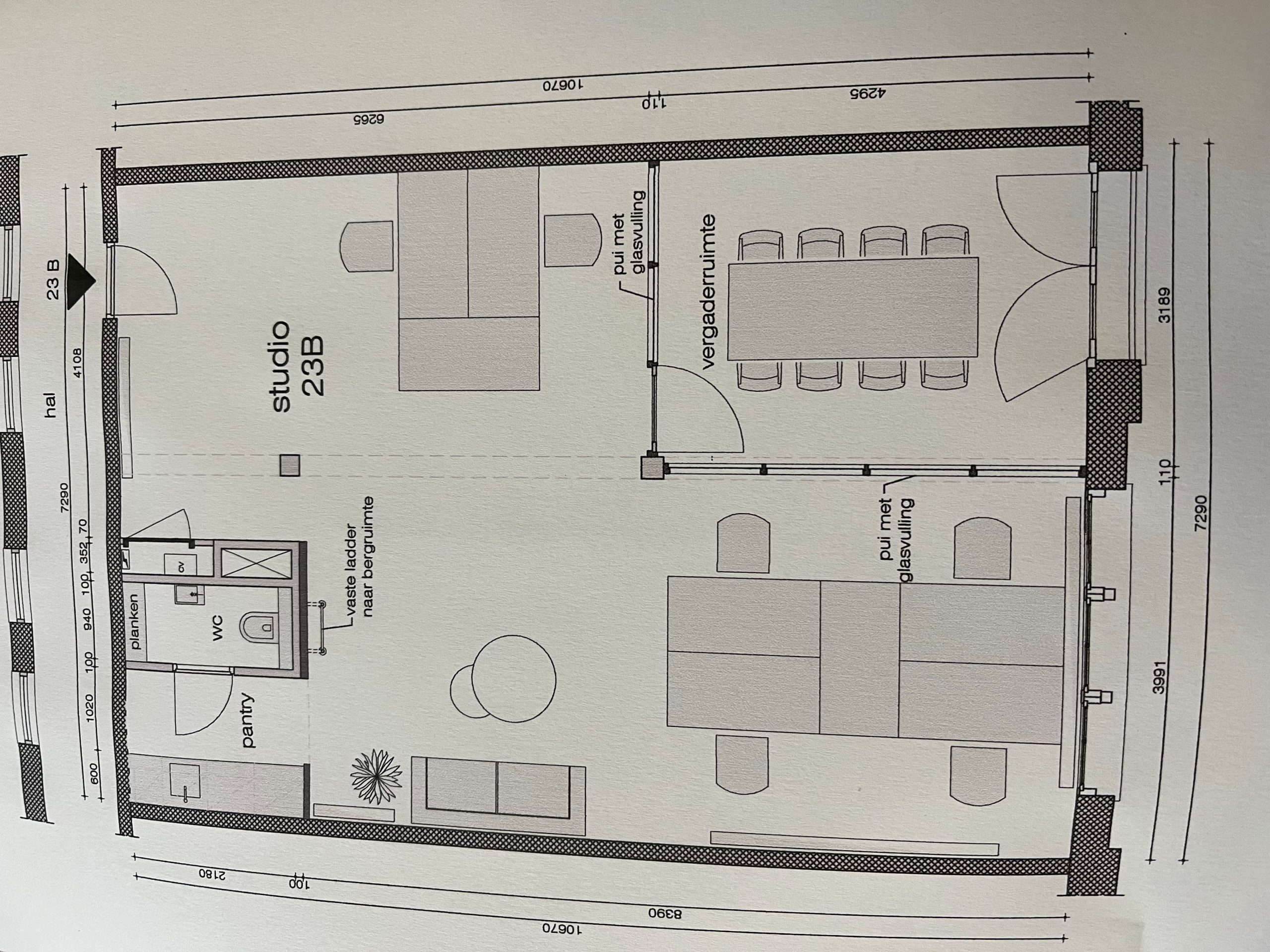
84 m2

Studio met uitzicht op Historisch Delfshaven Henkespand, Historisch Delfshaven

Altijd al gedroomd van een werkplek in dit historische deel van Rotterdam?
Dan is dit je kans!!
De studio ligt op de 1e etage van het Henkespand in het hartje van Historisch Delfshaven.